Matériau : bois massif, épicéa du Nord
Couleur : naturel
Épaisseur des parois : madriers 40mm
Hauteur faitage : 234cm
Hauteur parois : 230cm
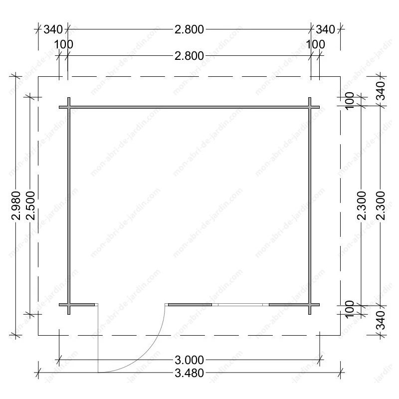
Surface totale : 7,5m²
Toit en bois massif : voliges 20mm
Lames anti-tempêtes fournies
Plancher INCLUS
Garantie: 2 ans
» Voir tous les détails techniques » Voir tous les détails techniques
L’avis du spécialiste sur l’abri de jardin en bois massif 7,5m² MODERNE – madriers 40mm Gardy Shelter
Avec cet abri de jardin de Gardy Shelter, vous disposerez d’un espace de stockage moderne qui s’intégrera à merveille dans votre extérieur. La surface utile de 6m² et les hautes parois vous permettront de ranger au sec vos outils de jardinage et de bricolage, et de marcher librement à l’intérieur sans vous baisser. La porte vitrée et la fenêtre fixe sur la façade contribueront à l’ambiance claire et aérée, tandis que la fermeture à clé protégera votre abri de jardin des intrusions indésirables.
Les madriers de 40mm, en épicéa nordique, s’emboîtent facilement grâce aux doubles rainures et languettes pour assurer à votre abri en bois une grande stabilité. Livrés bruts, ils doivent être lasurés ou peints avant le montage afin de garantir à votre abri de jardin une protection durable contre les insectes et les intempéries.
Signé Gardy Shelter, l’abri de jardin moderne au toit plat 40mm est fourni avec un plancher en bois massif avec lambourdes incluses traitées autoclave qui servent à isoler votre abri de jardin de l’humidité provenant du sol. Le toit plat, également en bois massif est couvert du feutre bitumé. Il est recommandé d’opter pour un revêtement plus souple et étanche, comme la bâche EPDM ou PVC qui donnera à votre abri en bois un look soigné.




















Avis
Il n’y a pas encore d’avis.